Overtoom 484 2

Amsterdam

€ 700.000 k.k.

Icon woonoppervlakte

84m²

Icon woningtype

Portiekwoning

Icon slaapkamers

2 Slaapkamers

Omschrijving

Zeer stijlvol gerenoveerd driekamer woning van 84 m² met prachtig zicht op het Vondelpark.

Dit heerlijke, lichte appartement heeft een uitstekende indeling en is ideaal gelegen recht tegenover de ingang van het Vondelpark, met alle denkbare voorzieningen binnen handbereik.
Het pand is in 2008/2009 volledig vernieuwd en voorzien van een nieuwe fundering.
De woning beschikt over een ruime woonkamer met uitzicht op de boomtoppen van het Vondelpark. Dankzij de hoge plafonds en grote ramen geniet je hier de hele dag van prachtige lichtinval.

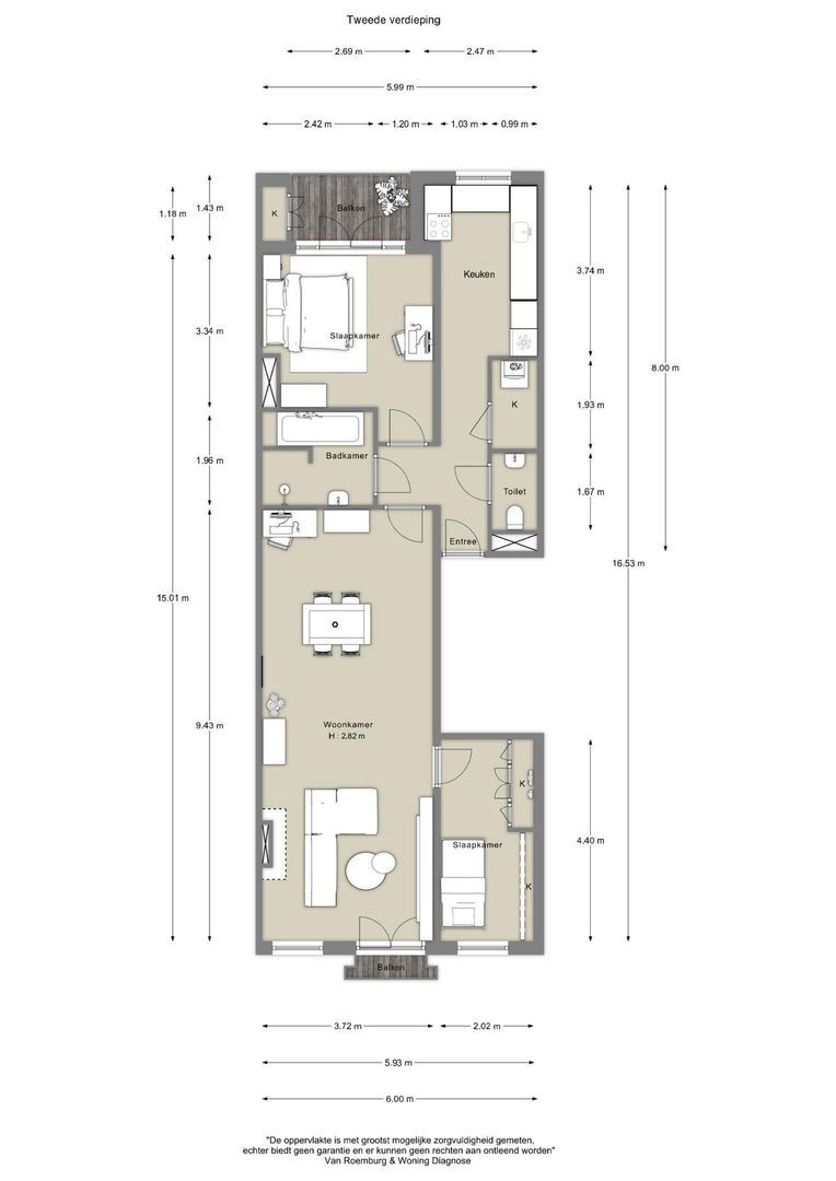
Indeling;
Via het goed onderhouden trappenhuis bereik je het appartement op de tweede verdieping.
De hal biedt toegang tot alle vertrekken.
De moderne keuken is uitgerust met diverse inbouwapparatuur, waaronder een stijlvol RVS 5-pits gaskookplaat bijpassende afzuigkap en separate combi-oven. Er is bovendien volop opbergruimte aanwezig.
De lichte woonkamer ligt aan de voorzijde en geeft toegang tot het balkon op het zuiden.
Aan de achterzijde bevindt zich de ruime hoofdslaapkamer, eveneens met toegang tot een ruim tweede balkon.
De badkamer is modern en comfortabel ingericht met een ligbad, inloopdouche en een wastafel met strak meubel.
In het appartement ligt een fraaie houten vloer, die zorgt voor een rustige en stijlvolle basis.

Locatie;
Dit appartement ligt op een zeer geliefde locatie in Amsterdam Oud-West, aan de levendige Overtoom. In de directe omgeving vind je een breed aanbod aan restaurants, cafés en winkels. Ook de Ten Katemarkt en de Foodhallen liggen op nog geen vijf minuten fietsen.
’s Morgens kunt u heerlijk hardlopen in het Vondelpark en s ’avonds wandelt u nog even heerlijk door het park richting Zuid of het Centrum.

Voor de dagelijkse boodschappen kun je terecht bij de Albert Heijn en diverse speciaalzaken in de buurt, zoals een slager, groenteboer en slijterij.

De bereikbaarheid is uitstekend: voor de deur bevindt zich een tramhalte (lijn 1), die je in minder dan vijf minuten naar het Leidseplein of station Lelylaan brengt. Ook de Ring A10 is binnen enkele minuten bereikbaar via het Surinameplein. In de omgeving is bovendien voldoende parkeergelegenheid aanwezig.
Kortom: een ideaal gelegen appartement in het bruisende en populaire Oud-West!

Vereniging van Eigenaren;
De VvE is kleinschalig en bestaat uit vijf leden. De administratie wordt intern gevoerd en de maandelijkse servicekosten bedragen € 150,-.

Bijzonderheden;
• Woonoppervlakte: 84 m² (BBMI-certificaat beschikbaar)
• Gelegen op eigen grond
• Twee balkons (voor- en achterzijde)
• Twee slaapkamers
• Luxe, ruime keuken
• Video Intercominstallatie
• Hoogwaardige en nette afwerking
• Compleet gerenoveerd in 2008/2009, inclusief nieuwe fundering
• Goed onderhouden pand
• Kleinschalige VvE (5 leden, interne administratie)
• Servicekosten: € 150,- per maand
• Oplevering in overleg

Kortom: een bijzonder licht, goed ingedeeld en instap klaar 3-kamerappartement op een toplocatie in Amsterdam Oud-West, gelegen op eigen grond!

Kenmerken

Aanvaarding
Prijs
€ 700.000 k.k.
Status
Beschikbaar
Oplevering
In overleg
Adres
Overtoom 484 2
Postcode
1054 JZ
Plaats
Amsterdam
Bouw
Soort appartement
Portiekwoning, Appartement
Woonlaag
3
Soort bouw
Bestaande bouw
Bouwjaar
1904
Onderhoud binnen
Uitstekend
Onderhoud buiten
Goed
Oppervlakten en inhoud
Woonoppervlakte
ca. 84m²
Inhoud
ca. 295m³
Indeling
Aantal kamers
3
Aantal slaapkamers
2
Aantal badkamers
1
Aantal verdiepingen
1
Voorzieningen
Mechanische ventilatie, TV-Kabel
Energie
Energielabel
C
Isolatie
Gedeeltelijk dubbel glas
Warm water
C.V.-ketel
Verwarming
C.V.-ketel
Ketel
Nefit (2023, Combi-ketel, Eigendom)
Buitenruimte
Ligging
Beschutte ligging, In centrum, In woonwijk, Vrij uitzicht
Garage

Locatie

[{"address": "Overtoom484","zipCode": "1054 JZ","city": "Amsterdam","lat": 52.3591074,"lng": 4.8604007,"heading": 0,"pitch": 0}]

Bekijk verloop van de zon

Uw browser ondersteunt geen WebGL

Wilt u meer informatie of een afspraak maken?

Bel 020 - 676 66 33, mail of gebruik het onderstaande formulier om contact met ons op te nemen.

Uw bericht is naar ons verzonden. Wij nemen zo snel mogelijk contact met u op.

Er is iets mis gegaan met het versturen van het formulier.
Controleer of u alle velden (goed) heeft ingevoerd en probeer het nog een keer.

Bij het verzenden van dit formulier geef ik toestemming mijn gegevens te verwerken op de manier zoals omschreven in het privacy statement

recaptcha
reCAPTCHA
PrivacyTerms

Vergelijkbare woningen

Overtoom 484 2, Amsterdam Nieuw!
Spuistraat 36 C Amsterdam € 599.000 k.k.
Icon oppervlakte81m²
Icon woningtypeBovenwoning
Icon slaapkamers2
Overtoom 484 2, Amsterdam Nieuw!
Vrijheidslaan 27 1 Amsterdam € 599.000 k.k.
Icon oppervlakte74m²
Icon woningtypeBovenwoning
Icon slaapkamers3