Prins Hendriklaan 38 C

Amsterdam

€ 1.275.000 k.k.

Icon woonoppervlakte

103m²

Icon woningtype

Bovenwoning

Icon slaapkamers

2 Slaapkamers

Omschrijving

Exclusief design appartement nabij het Vondelpark over 1 laag met lift, balkons en berging.

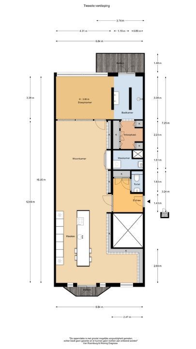
Aan de statige Prins Hendriklaan, in een klassiek herenhuis uit 1912, bevindt zich dit luxueuze en volledig gelijkvloerse design appartement van 103 m². Het interieur is ontworpen door de gerenommeerde Marcel Wolterinck en ademt warmte, elegantie en exclusiviteit. Het pand beschikt over een lift en in het souterrain is een ruime berging van 9 m² aanwezig.

Indeling

Via de stijlvolle entree met garderobe en gastentoilet betreedt u de woning. Een brede stalen deur opent naar de lichte doorzonwoonkamer, waar de Amerikaans notenhouten vloer met vloerverwarming direct de toon zet.

Aan de voorzijde bevindt zich de woonkeuken met een bijna drie meter lang marmeren werkblad met geïntegreerde gaspitten en spoelbak. De hoogwaardige Gaggenau-apparatuur is volledig weggewerkt achter elegante kasten.
Openslaande deuren leiden naar een balkon (ochtendzon), terwijl de aangrenzende ruimte flexibel te gebruiken is als bibliotheek, werkkamer of tweede slaapkamer.

De zitkamer in het hart van het appartement biedt een intieme sfeer met een gashaard, ingebouwde kasten en een televisie die onzichtbaar verdwijnt achter een elektrisch bedienbaar paneel.
Aan de achterzijde ligt de master bedroom, gescheiden door een stijlvolle stalen raampartij. Vanuit hier geven openslaande deuren toegang tot een ruim tweede balkon (middagzon). De en-suite badkamer is uitgevoerd in eikenhout met bronzen details alsmede luxe maremeren afwerking, en beschikt over een inloopdouche met rainshower. Een op maat gemaakte inloopkast en een aparte wasruimte maken het geheel compleet.

Door het hele appartement zijn luxe details terug te vinden, zoals op maat gemaakte zwarte inbouwkasten en houten lamellen voor alle ramen. Daarbij treft u ingebouwde boxen, domotica en fraaie marmeren accenten.

Locatie

Het appartement ligt in een rustige, prestigieuze straat in Oud-Zuid, direct bij het Vondelpark. Op loopafstand vindt u het Museumplein met het Rijksmuseum en Van Gogh Museum, de P.C. Hooftstraat, het Concertgebouw en het Leidseplein. Ook de Cornelis Schuytstraat, Emmastraat en Amstelveenseweg bieden een breed aanbod aan winkels en dagelijkse voorzieningen. Daarnaast zijn er talloze restaurants en cafés in de directe omgeving. De bereikbaarheid met zowel openbaar vervoer als de Ring A10 is uitstekend

Kenmerken
• Woonoppervlakte: 103 m² (NEN 2580)
• Bouwjaar: 1912
• Beschermd stads- en dorpsgezicht
• VvE met 7 leden, professioneel beheerd, MJOP aanwezig
• Mogelijkheid tot tweede slaapkamer aan de voorzijde
• Servicekosten: ca. € 411,81 per maand
• Energielabel B
• Erfpacht afgekocht tot 31-12-2039, daarna vastgeklikt.
• Lift in het gebouw
• Ruime berging in het souterrain 9 m²
• Parkeren via vergunningstelsel: vrijwel altijd plek voor de deur!

Kenmerken

Aanvaarding
Prijs
€ 1.275.000 k.k.
Servicekosten
€ 412
Status
Beschikbaar
Oplevering
In overleg
Adres
Prins Hendriklaan 38 C
Postcode
1075 BD
Plaats
Amsterdam
Bouw
Soort appartement
Bovenwoning, Appartement
Woonlaag
2
Soort bouw
Bestaande bouw
Bouwjaar
1912
Onderhoud binnen
Uitstekend
Onderhoud buiten
Goed
Bijzonderheden
Beschermd stads- of dorpgezicht
Oppervlakten en inhoud
Woonoppervlakte
ca. 103m²
Inhoud
ca. 309m³
Indeling
Aantal kamers
3
Aantal slaapkamers
2
Aantal badkamers
1
Aantal verdiepingen
1
Voorzieningen
Domotica, Lift, Mechanische ventilatie, Rookkanaal, TV-Kabel
Energie
Energielabel
B
Isolatie
Dubbel glas, Vloerisolatie
Warm water
Doorstroomboiler
Verwarming
C.V.-ketel
Ketel
Nefit Topline HRC30 (Combi-ketel, Eigendom)
Buitenruimte
Ligging
Aan park, Aan rustige weg, In woonwijk
Balkon
Ja
Schuur
Inpandig
Faciliteiten schuur
Voorzien van elektra
Garage

Locatie

[{"address": "Prins Hendriklaan38","zipCode": "1075 BD","city": "Amsterdam","lat": 52.3537131,"lng": 4.8614231,"heading": 0,"pitch": 0}]

Bekijk verloop van de zon

Uw browser ondersteunt geen WebGL

Plattegronden

Prins Hendriklaan 38 C, Amsterdam plattegrond-25
Prins Hendriklaan 38 C, Amsterdam plattegrond-25

Wilt u meer informatie of een afspraak maken?

Bel 020 - 676 66 33, mail of gebruik het onderstaande formulier om contact met ons op te nemen.

Uw bericht is naar ons verzonden. Wij nemen zo snel mogelijk contact met u op.

Er is iets mis gegaan met het versturen van het formulier.
Controleer of u alle velden (goed) heeft ingevoerd en probeer het nog een keer.

Bij het verzenden van dit formulier geef ik toestemming mijn gegevens te verwerken op de manier zoals omschreven in het privacy statement

recaptcha
reCAPTCHA
PrivacyTerms

Vergelijkbare woningen

Prins Hendriklaan 38 C, Amsterdam
Bloemendalergouw 51 B Amsterdam € 1.385.000 k.k.
Icon oppervlakte272m²
Icon woningtype2-onder-1-kapwoning
Icon slaapkamers4
Prins Hendriklaan 38 C, Amsterdam
Bloemendalergouw 51 A Amsterdam € 1.385.000 k.k.
Icon oppervlakte266m²
Icon woningtype2-onder-1-kapwoning
Icon slaapkamers5
Prins Hendriklaan 38 C, Amsterdam
Plantage Middenlaan 84 H Amsterdam € 1.345.000 k.k.
Icon oppervlakte145m²
Icon woningtypeBenedenwoning
Icon slaapkamers3