Floraronde 243

Velserbroek

€ 525.000 k.k.

Icon woonoppervlakte

107m²

Icon plotSurface

148m²

Icon woningtype

Hoekwoning

Icon slaapkamers

4 Slaapkamers

Omschrijving

**English text below**

Over de grens met Haarlem staat in de kindvriendelijke Pijlkruidbuurt deze hoekwoning met energielabel A! De lichte woonkamer is voorzien van een trapkast en een schuifpui welke toegang geeft tot de riante achtertuin (ca. 13 meter diep). Aan de voorzijde bevindt zich de keuken in hoekopstelling. Verder beschikt de woning op de 1e verdieping over drie goede slaapkamers en een badkamer. Op de zolderverdieping bevind zich nog een grote slaapkamer.


Ligging
De Pijlkruidbuurt is een fijne buurt met diverse speeltuintjes en plantsoentjes in de omgeving. De woning is op korte fietsafstand gelegen van het centrum van Velserbroek waar je terecht kunt voor de dagelijkse boodschappen. Met ca. 20 minuten fietsafstand is ook het centrum van Haarlem goed bereikbaar. Door de centrale ligging ten opzichte van diverse uitvalswegen en de directe nabijheid van scholen, sportvoorzieningen en het winkelcentrum, is dit een zeer geliefde woonomgeving. Vanaf de Westerbroekweg vertrekken diverse bussen met een goede verbinding naar het station van Haarlem. De recreatiegebieden Spaarnwoude, Westbroekplas en sportaccommodaties bevinden zich op fietsafstand. Kortom, een fijne omgeving om te wonen.


Indeling
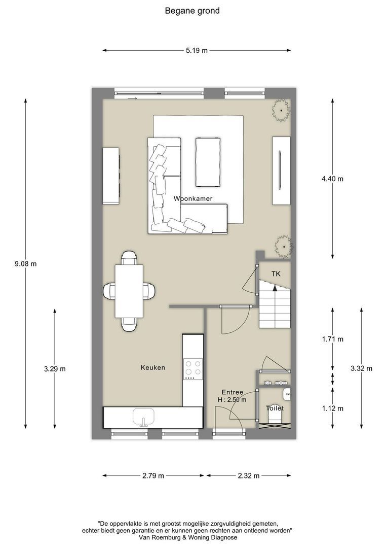
Begane grond: entree, hal v.v. meterkast, zwevend toilet met fonteintje, lichte woonkamer v.v. trapkast en schuifdeur naar de achtertuin, open keuken aan de voorzijde in hoekopstelling.

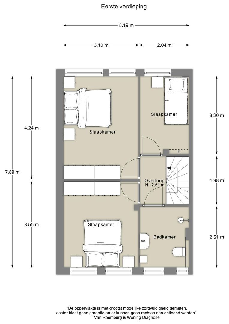
1e verdieping: overloop met toegang tot drie slaapkamers. De badkamer is v.v. douche, zwevend toilet en wastafel.

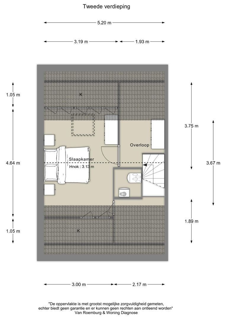
2e verdieping: overloop met toegang tot een grote slaapkamer/zolderverdieping, v.v. dakraam, en vaste kast met aansluiting voor de cv-ketel/heteluchtsysteem.


Wetenswaardigheden
- Voor indeling en maten verwijzen wij naar de plattegrond;
- Woonoppervlak ca. 107 m2, inhoud ca. 280 m3;
- Perceeloppervlak 148 m2;
- Bouwjaar 1989;
- Energielabel A;
- Verwarming middels heteluchtsysteem, warmwater middels CV-ketel;
- 10 zonnepanelen aanwezig;
- Achtertuin op het noordwesten gesitueerd en v.v. berging en achterom;
- Notaris ter keuze van verkoper (zie clausuleblad);
- De koopovereenkomst wordt opgesteld conform het clausuleblad;
- Oplevering in overleg.

**

Just across the border with Haarlem, in the family-friendly Pijlkruidbuurt, you will find this corner house with energy label A! The bright living room features a staircase cupboard and sliding doors that provide access to the spacious rear garden (approx. 13 meters deep). At the front of the house is the corner kitchen layout. Furthermore, the first floor offers three well-proportioned bedrooms and a bathroom. On the attic floor there is an additional large bedroom.

Location
The Pijlkruidbuurt is a pleasant residential area with various playgrounds and green spaces nearby. The house is located within a short cycling distance of the center of Velserbroek, where you can do your daily shopping. The center of Haarlem is also easily accessible, at approximately 20 minutes by bike. Thanks to its central location close to various main roads and the immediate proximity of schools, sports facilities, and the shopping center, this is a very popular living environment. From Westerbroekweg, several bus lines depart with good connections to Haarlem railway station. The recreational areas Spaarnwoude and Westbroekplas, as well as sports facilities, are within cycling distance. In short, a wonderful place to live.

Layout
Ground floor: entrance, hallway with meter cupboard, wall-hung toilet with washbasin, bright living room with staircase cupboard and sliding doors to the rear garden, open corner kitchen at the front.
First floor: landing with access to three bedrooms. The bathroom is fitted with a shower, wall-hung toilet, and washbasin.
Second floor: landing with access to a large bedroom/attic floor, fitted with a roof window and a built-in cupboard with connections for the central heating boiler/hot air heating system.

Additional information
- For layout and dimensions, please refer to the floor plan;
- Living area approx. 107 m², volume approx. 280 m³;
- Plot size 148 m²;
- Built in 1989;
- Energy label A;
- Heating via hot air heating system, hot water via central heating boiler;
- 10 solar panels installed;
- Rear garden facing northwest, with storage shed and rear access;
- Notary to be chosen by the seller (see clause sheet);
- The purchase agreement will be drawn up in accordance with the clause sheet;
- Transfer in consultation.

Kenmerken

Aanvaarding
Prijs
€ 525.000 k.k.
Status
Beschikbaar
Oplevering
In overleg
Adres
Floraronde 243
Postcode
1991 LA
Plaats
Velserbroek
Bouw
Soort woonhuis
Eengezinswoning, Hoekwoning
Soort bouw
Bestaande bouw
Bouwjaar
1989
Onderhoud binnen
Goed
Onderhoud buiten
Goed
Oppervlakten en inhoud
Woonoppervlakte
ca. 107m²
Perceeloppervlakte
ca. 148m²
Inhoud
ca. 280m³
Indeling
Aantal kamers
5
Aantal slaapkamers
4
Aantal badkamers
1
Aantal verdiepingen
3
Voorzieningen
Mechanische ventilatie, Schuifpui, Zonnepanelen
Energie
Energielabel
A
Isolatie
Dubbel glas
Warm water
C.V.-ketel
Verwarming
Hete lucht verwarming
Buitenruimte
Ligging
In woonwijk
Tuin
Achtertuin, Voortuin
Achtertuin
Noordwest, 75m², 593×1262cm
Schuur
Vrijstaand steen
Faciliteiten schuur
Voorzien van elektra
Garage

Locatie

[{"address": "Floraronde243","zipCode": "1991 LA","city": "Velserbroek","lat": 52.4304732,"lng": 4.6536373,"heading": 0,"pitch": 0}]

Bekijk verloop van de zon

Uw browser ondersteunt geen WebGL

Wilt u meer informatie of een afspraak maken?

Bel 020 - 676 66 33, mail of gebruik het onderstaande formulier om contact met ons op te nemen.

Uw bericht is naar ons verzonden. Wij nemen zo snel mogelijk contact met u op.

Er is iets mis gegaan met het versturen van het formulier.
Controleer of u alle velden (goed) heeft ingevoerd en probeer het nog een keer.

Bij het verzenden van dit formulier geef ik toestemming mijn gegevens te verwerken op de manier zoals omschreven in het privacy statement

recaptcha
reCAPTCHA
PrivacyTerms