Tweebaksmarkt 36

Leeuwarden

€ 1.500.000 k.k.

Icon woonoppervlakte

493m²

Icon plotSurface

406m²

Icon woningtype

Geschakelde woning

Icon slaapkamers

8 Slaapkamers

Omschrijving

Het Sminia Huys – Een monumentaal meesterwerk in het hart van Leeuwarden

Stap binnen in een van de meest beeldbepalende parels van Leeuwarden: het Sminia Huys, gelegen aan de geliefde Tweebaksmarkt 36. Dit statige herenhuis uit 1739 behoort zonder twijfel tot de mooiste voorbeelden van achttiende-eeuwse architectuur. De imposante lijstgevel ademt grandeur en vormt een tijdloos decor voor het rijke verleden dat dit pand draagt.

Achter de monumentale gevel ontvouwt zich een royale luxueuze woning die zowel indrukwekkend als verrassend veelzijdig is. Het pand beschikt over twee royale woonverdiepingen, een zolder met vliering én een souterrain, waar zich een complete wijnkelder met wijnmakerij bevindt — een unieke vondst die het huis extra allure geeft.

De fraai aangelegde achtertuin, ontworpen in landschapsstijl, is een oase van rust en ruimte. Een zeldzaam bezit midden in de historische binnenstad, waar privacy en groen op harmonieuze wijze samenkomen.

Dankzij een ingrijpende renovatie door de huidige eigenaren is het interieur volledig gemoderniseerd, met behoud van het originele karakter en authentieke details. In het voorhuis zijn twee stijlvolle appartementen gerealiseerd (36A en 36B), terwijl het achterste deel in gebruik is als luxueuze privéwoning (36). Creatieve indelingen, hoogwaardig stucwerk, vloerverwarming, marmeren entree en nieuwe trappen zorgen voor hedendaags comfort in een historisch jasje.

Subtiele stijlelementen versterken het monumentale karakter. Werkelijk alles ademt kwaliteit en oog voor detail. Hier smelten historie en hedendaagse elegantie samen tot een uitzonderlijk geheel. Ervaar zelf de unieke sfeer en de tijdloze schoonheid van dit bijzondere pand.

Bijzonderheden
3 woningen: huisnummer 36: circa 361 m², huisnummer 36A: circa 55 m² en huisnummer 36B: circa 77 m²

• Huisnummer 36 + studio: 361 m², met ruime living met leefkeuken (87 m²), achtertuin (142 m²), 4 slaapkamers en 2 badkamers. Studio met pantry, badkamer en slaapkamer.
• Huisnummer 36A: 55 m², authentieke ruimte met pantry en badkamer.
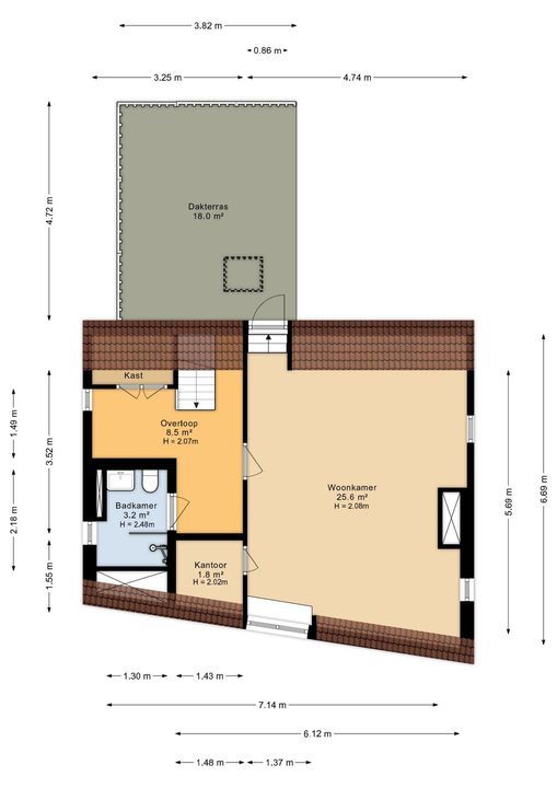
• Huisnummer 36 B: 77 m², met woonkamer, keuken, slaapkamer, badkamer en dakterras

Kenmerken

Aanvaarding
Prijs
€ 1.500.000 k.k.
Status
Beschikbaar
Oplevering
In overleg
Adres
Tweebaksmarkt 36
Postcode
8911 KX
Plaats
Leeuwarden
Bouw
Soort woonhuis
Herenhuis, Geschakelde woning
Soort bouw
Bestaande bouw
Bouwjaar
1739
Onderhoud binnen
Goed
Onderhoud buiten
Goed
Bijzonderheden
Monumentaal pand
Oppervlakten en inhoud
Woonoppervlakte
ca. 493m²
Perceeloppervlakte
ca. 406m²
Overig oppervlakte
ca. 81m²
Inhoud
ca. 1.855m³
Indeling
Aantal kamers
14
Aantal slaapkamers
8
Aantal badkamers
5
Aantal verdiepingen
4
Voorzieningen
Dakraam, Frans balkon, Glasvezel kabel, Mechanische ventilatie, Rookkanaal, TV-Kabel, Zonnepanelen
Energie
Energielabel
A
Isolatie
Dakisolatie, Grotendeels dubbelglas, Muurisolatie, Vloerisolatie
Warm water
C.V.-ketel, Elektrische boiler eigendom
Verwarming
C.V.-ketel, Vloerverwarming gedeeltelijk
Ketel
Remeha en Intergas (2010, Combi-ketel, Eigendom)
Buitenruimte
Ligging
Beschutte ligging, In centrum
Tuin
Achtertuin
Achtertuin
West, 142m², 1100×1500cm
Schuur
Inpandig
Garage

Locatie

[{"address": "Tweebaksmarkt36","zipCode": "8911 KX","city": "Leeuwarden","lat": 53.2022611,"lng": 5.8006156,"heading": 0,"pitch": 0}]

Bekijk verloop van de zon

Uw browser ondersteunt geen WebGL

Plattegronden

Tweebaksmarkt 36, Leeuwarden plattegrond-34
Tweebaksmarkt 36, Leeuwarden plattegrond-34
Tweebaksmarkt 36, Leeuwarden plattegrond-34
Tweebaksmarkt 36, Leeuwarden plattegrond-34
Tweebaksmarkt 36, Leeuwarden plattegrond-34
Tweebaksmarkt 36, Leeuwarden plattegrond-34
Tweebaksmarkt 36, Leeuwarden plattegrond-34

Wilt u meer informatie of een afspraak maken?

Bel 020 - 676 66 33, mail of gebruik het onderstaande formulier om contact met ons op te nemen.

Uw bericht is naar ons verzonden. Wij nemen zo snel mogelijk contact met u op.

Er is iets mis gegaan met het versturen van het formulier.
Controleer of u alle velden (goed) heeft ingevoerd en probeer het nog een keer.

Bij het verzenden van dit formulier geef ik toestemming mijn gegevens te verwerken op de manier zoals omschreven in het privacy statement

recaptcha
reCAPTCHA
PrivacyTerms